Официальный дилер Бризарт
8 800 775-08-79
г. Москва, БЦ Вятский, ул. Вятская д.70, офис 715
Пн-Пт: 9:30-18:00
Cб-Вс: Выходной
Заказать звонок

Breezart 1000FC Aqua

Breezart 1000FC Aqua
Breezart 1000FC Aqua
406 600 ₽
-0%
406 600 ₽
- +
В корзину
Добавлено
Breezart 1000FC Aqua
0 ₽
406 600 ₽
Добавлено
В избранное
В избранном
В сравнение
В сравнении
Артикул: 178601
Розничная цена
406 600 ₽
-0%
406 600 ₽
Нашли дешевле?
-
+
×
Выбрано максимальное количество, доступное для заказа
шт.
В корзину
Добавлено
Приточная установка с водяным нагревателем
Тип
Приточная установка
Маркировка
1000FC Aqua
Серия
FC Aqua
Гарантия
3 года
Все характеристики
Способы оплаты
Доставка

Приточная вентиляционная установка Breezart 550FC Aqua служит для создания эффективной системы вентиляции в помещениях, где отсутствует естественная циркуляция воздуха. Также оборудование дает возможность зонального регулирования и построения VAV-систем, что позволяет существенно снизить расходы на нагрев воздуха.

Особенности:

  • Встроенная цифровая автоматика (MODBUS) с возможностью подключения к системе "умный дом"
  • Пульт управления с цветным сенсорным дисплеем
  • Удаленное управление (WEB-интерфейс)
  • Управление вентилятором по датчикам CO2 / VOC (опция)
  • Контроль загрязненности воздушного фильтра (цифровой датчик давления)
  • Управление увлажнителем 
  • Управление вытяжным вентилятором
  • Управление увлажнителем 
  • Недельный таймер
  • VAV-совместимая вентустановка 
  • Вентилятор EBMPapst серии EC (инверторный)
  • 10-ти ступенчатое регулирование производительности
  • Нагреватель водяной
  • Смесительный узел водяного нагревателя
  • Фильтр класса G4 на входе притока
  • Управление внешним ККБ и охладителем воздуха (опция)
  • Электрический/водяной (пропиленгликоль) предварительный нагреватель (опция)
  • Воздушный клапан на входе притока, с электроприводом, без возвратной пружины
  • Термо- и шумоизолированный корпус

Приточные вентиляционные установки Breezart серии FC Aqua – это энергоэффективное оборудование, оснащенное водяным нагревателем и ЕС-вентилятором китайского производства с вперед загнутыми лопатками. Линейка представлена тремя моделями, которые различаются между собой объемом расходуемого воздуха в час и размерами обслуживаемой площади.

Тип
Приточная установка
Маркировка
1000FC Aqua
Серия
FC Aqua
Гарантия
3 года
Родина бренда
Россия
Страна сборки
Россия
Тип вентиляционной установки
компактная приточная
Тип нагревателя
водяной
Уровень шума, дБ
39
Воздуховод
круглый
Электропитание, В/Гц/Ф
220/50/1
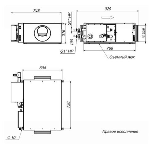
Размеры, мм
316х748х929
Вес, кг
45
Ширина в упаковке, мм
848
Глубина в упаковке, мм
1029
Высота в упаковке, мм
416
Вес в упаковке, кг
48
Особенность
VAV-совместимая установка
Воздухообмен (макс), куб.м/ч
1000
Диаметр, мм
250
Мощность (производительность), кВт
0.3
Класс защиты
IP40
Мощность двигателя вентилятора, кВт
0.23
Wi-Fi / онлайн управление
Есть
Варианты маркировки
1000 Aqua-FC,1000 Aqua
Breezart 1000FC Aqua